无轴螺旋输送机型号及参数有哪些?
发布日期:2022/4/29 类别:公司新闻 浏览量: 4608 次
无轴螺旋输送机用于污水处理厂输送中细格栅其栅条净距50mm的除污机栅渣和压滤机泥饼等物料。 性能好。采用全封闭输送和易清洗的螺旋表面,可保证环境卫生和所送物料不受污染、不泄漏。 扭距大、能耗低。由于螺旋无轴,物料不易堵塞,排料口不堵塞,因而可以较低速度运转,平稳传动,降低能耗。

湖州亚杭环保机械设备有限公司主营研发制造各种无轴螺旋输送机,主要包含WLS150、WLSW200、WLS250、WLS300、WLS400、WLS500等型号,输送长度小于20m,可以选择WLS150、WLS200等型号,30m以内,可以选择WLS400、WLS500等型号。
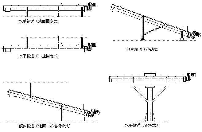
结构原理图:
技术参数:

| 型号 |
WLS150 |
WLS200 |
WLS250 |
WLS300 |
WLS400 |
WLS500 |
| 名称 |
| 螺旋体直径 (mm) |
150 |
184 |
237 |
284 |
365 |
470 |
| 外壳管直径 (mm) |
180 |
219 |
273 |
351 |
402 |
500 |
| 允许工作角度 ( α ) |
0 °~30 ° |
0 °~30 ° |
0 °~30 ° |
0 °~30 ° |
0 °~30 ° |
0 °~30 ° |
| 输送长度 (m) |
12 |
13 |
16 |
18 |
22 |
25 |
| 输送能力 (t/h) |
2.4 |
7 |
9 |
13 |
18 |
28 |
| 电机 |
型号 |
L ≤7 |
Y90L-4 |
Y100L1-4 |
Y100L2-4 |
Y132S-4 |
Y160M-4 |
Y160M-4 |
| 功率kW |
1.5 |
2.2 |
3 |
5.5 |
11 |
11 |
| 型号 |
L>7 |
Y100L1-4 |
Y100L2-4 |
Y112M-4 |
Y132M-4 |
Y160L-4 |
Y160L-4 |
| 功率kW |
2.2 |
3 |
4 |
7.5 |
15 |
15 |
安装方式:

