
WLS无轴螺旋输送机
一、概述:
无轴螺旋输送机是我公司根据建材、化工、环保、电力、医药、冶金、食品等行业在采用,LS型、GX型螺旋输送机输送磨琢性大、粘性较大,易结块,易缠绕物料时形成物料堵塞,吊轴承损坏使螺旋机不能正常工作的实际情况下而研发制造的一种新型WLS型螺旋输送机。wls型无轴螺旋输送机适用于连续均匀输送较松散的、有粘性的、易缠绕物料,输送物料温度Z高可达100℃,Z大倾角小于45°。
湖州亚杭环保机械设备有限公司无轴螺旋输送机主要规格有:WLS200、WLS250、WLS300、WLS350、WLS400、WLS500

单无轴螺旋输送机

双无轴螺旋输送机

多无轴螺旋输送机
二、无轴螺旋输送机的特点
无轴螺旋输送机与传统有轴螺旋输送机相比,由于采用了无中心轴、吊轴承设计,利用具有一定柔性的整体钢制螺旋推送物料,因而具有以下突出优点:
1、螺旋具有超强耐磨性和耐用性,使用寿命长。
2、抗缠绕性强:无中心轴干扰,对于输送带状、易缠绕物料有特殊的优越性,防止阻塞引起事故。
3、环保性能好:采用全封闭输送和易清洗的螺旋表面,可以保证环境卫生和所输送物料不受污染、不泄漏。
4、扭距大、能耗低:由于螺旋无轴、物料不易堵塞,因而可以较低速度运转,平稳传动,降低能耗。
5、输送量大:输送量是相同直径传统有轴输送机的1.5倍,Z大达40m3/h。输送距离长,可达25米,并可以根据用户需要,采用多级串联式安装,超长距离输送物料。
6、结构紧凑,操作简便,经济耐用,维护量极少,维护费用低。
三、无轴螺旋输送机的结构
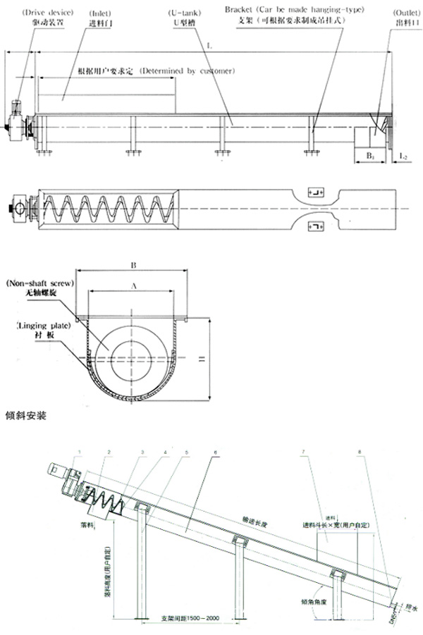
WLS无轴螺旋输送机产品主要由驱动装置、头部装配、机壳、无轴螺旋体、槽体衬板、进料口、出料口、机盖(需要时)、底座等组成。
1、驱动装置:采用摆线针轮轮减速机或轴装式硬齿面齿轮减速机,设计时应尽可能将驱动装置设在出料口端,使螺旋体在运转时处在受拉状态。
2、头部装配有推力轴承,可承受输送物料时产生的轴向力。
3、机壳:机壳为U型或O 型,上部加防雨型机盖,材质有不锈钢或碳钢或玻璃钢。
4、无轴螺旋体:材质为不锈钢或碳钢。
5、槽体衬板:材质为耐磨的塑料板或橡胶板或铸石板等。
6、进、出料口:有方形和圆形两种,一般进、出料口形式由用户决定。

四、无轴螺旋输送机的主要技术参数
