![]() |
![]() |
![]() |
你了解无轴螺旋输送机吗?发布日期:2022/5/13 类别:公司新闻 浏览量: 4781 次 无轴螺旋输送机简介
湖州亚杭环保生产的无轴螺旋输送机是根据建材、化工、环保、电力、医药、冶金、食品等行业在采用LS型、GX型号螺旋输送机输送磨琢性大、粘性较大,易结块,易缠绕物料时形成物料堵塞,吊轴承损坏使螺旋机不能正常工作的实际情况而自主研制开发的一种新型螺旋输送机。本产品适用于连续均匀输送较松散的、有粘性的、易缠绕物料,输送物料温度zui高可达100℃,zui大倾角小于45°。
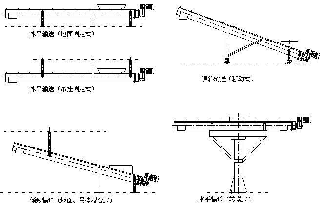
无轴螺旋输送机设备组成 本产品主要由驱动装置、头部装配、机壳、无轴螺旋体、槽体衬板、进料口、出料口、机盖(需要时)、底座等组成。 1、驱动装置:采用摆线针轮轮减速机或轴装式硬齿面齿轮减速机,设计时应尽可能将驱动装置设在出料口端,使螺旋体在运转时处在受拉状态。 2、头部装配有推力轴承,可承受输送物料时产生的轴向力。 3、机壳:机壳为U型或O 型,上部加防雨型机盖,材质有不锈钢或碳钢或玻璃钢。 4、无轴螺旋体:材质为不锈钢或碳钢。 5、槽体衬板:材质为耐磨的塑料板或橡胶板或铸石板等。 6、进、出料口:有方形和圆形两种,一般进、出料口形式由用户决定。
优势特点 无轴螺旋输送机与传统有轴螺旋输送机相比,由于采用了无中心轴、吊轴承设计,利用具有一定柔性的整体钢制螺旋推送物料,因而具有以下突出优点: 1、螺旋具有超强耐磨性和耐用性,使用寿命长。 2、抗缠绕性强:无中心轴干扰,对于输送带状、易缠绕物料有特殊的优越性,防止阻塞引起事故。 3、环保性能好:采用全封闭输送和易清洗的螺旋表面,可以保证环境卫生和所输送物料不受污染、不泄漏。 4、扭距大、能耗低:由于螺旋无轴、物料不易堵塞,因而可以较低速度运转,平稳传动,降低能耗。 5、输送量大:输送量是相同直径传统有轴输送机的1.5倍,zui大达40m3/h。输送距离长,可达25米,并可以根据用户需要,采用多级串联式安装,超长距离输送物料。 6、结构紧凑,操作简便,经济耐用,维护量极少,维护费用低。
技术参数选型
设备安装、调试及运行 1、设备安装要求: a、进、出料口现场安装应使进出料口的法兰支撑面与螺旋机的本体轴线平行;与相连接的法兰应紧密贴合不得有间隙。 b、螺旋机装好以后应检查减速机是否加足润滑油、若未加则加足之,其后进行无负载试车;在进行连续半小时以上试运转后,检查螺旋机装配的正确性,发现问题应立即停机,处理后再运转,直至处于良好运行状态为止。 c、螺旋机运转应平稳可靠,紧固件无松动现象。减速器无渗油、无异常声,电气设备安全可靠。
2、设备使用要求: a、螺旋机应无负荷起动,即在机壳内没有物料时起动,起动后方能向螺旋机给料。 b、螺旋机初始给料时,应逐步增加给料量直至达到额定输送能力,给料应均匀,否则容易造成输送物料的积塞,驱动装置的过载,使整台机器损坏。 c、为了保证螺旋机无负荷起动的要求,输送机在停车前应停止加料,等机壳内物料完全输送完毕后方可停止运转。 d、被输送物料内不得混入坚硬的大块物料,避免螺旋卡死而造成螺旋机的损坏。 e、在使用中经常检测螺旋机各部分的工作状态、注意各紧固件是否松动,如果发现机件松动,则应立即拧紧螺钉,使之重新坚固。 f、螺旋机的机盖在机器运转时不应该取下,以免发生事故。
上一条:螺旋输送机厂家哪里找?螺旋输送机哪家的质量好 |
||||||||||||||||||||||||||||||||||||||||||||||||